Unit is available.

Rare Opportunity Unit 163

$399,000
2 bed
1 bath
10.7 sqs

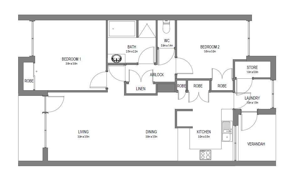
At Cumberland View Retirement Village, units at this price don’t come up often! Unit 163 Features: Sunroom, central bathroom with separate toilet, two luxurious bedrooms. 10.7 squares.

U163 Floor plan
Floorplan for Rare Opportunity Unit 163

Visit Cumberland View & Meet Your Neighbours

Our village at 101 Whalley Drive is easy to find and offers visitor parking. Come and experience the friendly community and beautiful surroundings yourself.

Unit 163 Rare Opportunity | Unit Overview

At Cumberland View Retirement Village, units at this price don’t come up often! Unit 163 Features: Sunroom, central bathroom with separate toilet, two luxurious bedrooms. 10.7 squares.

Enjoy low maintenance living with green open space right at your doorstep, and a wide range of resort-like facilities. Cool off in the pool, relax in the spa or work on a project in the men’s shed and greenhouse.

The centralised community hall has a spacious coffee hub, where you can catch up with friends and family, play a couple of games of billiards or try your hand at a game of bowls or croquet on the green.

Unit 163 Rare Opportunity

Village amenities

Billiard room
Croquet & bowling green
Computers & internet access
Community & concert hall
General store
Gymnasium & hydro spa pool
Hairdressing salon
Library & coffee lounge
Onsite nurse & healthcare specialists
Outdoor heated pool & BBQ area
Village bus
Vegetable garden

View more available units

Unit 49

Spacious Living

Price: $685,000*

Featuring stunning high ceilings with a generous sized kitchen adjacent to a spacious living area, this unit is perfect for entertaining.

Learn More

Independent Living Derwent 179

Independent Living

Price: $545,000*

Enjoy easy, independent living in this spacious 2 bedroom home. Featuring a galley kitchen and high cathedral ceilings, this residence offers floorboards throughout, a separate laundry, and a sunroom complete with a doggy door leading to a large, fenced backyard.

Learn More

Contact Us

We’d love to answer any questions or schedule a personal tour. Fill out the form or get in touch directly — we’re here to help.

Contact Us